گردآوری و ترجمه: محدثه عقبایی
پیوند شاعرانهای فولاد، تاریکی و نور: موزهی سولاژ از گروه RCR، برندگان پریتزکر ۲۰۱۷، برای نمایش آثار هنرمند انتزاعی فرانسوی، پیتر سولاژ


در دورهی شعارها، این پروژه اولین وظیفهی نقد -واکنش به آثار ساختهشده است- را یادآوری میکند. هیچچیز نمیتواند جای تجربهی مستقیم ساختمانها و درک قدمبهقدم اندیشهها، تصاویر و الهامات پشت آنها را بگیرد. در ارزیابیها باید به وظیفه و سایت و اهدافی که منجر به تصمیمگیریهای اصلی در فرآیند طراحی میشوند، توجه داشت. برای ارزیابی پروژه باید به زیر پوست ساختمان نفوذ و آناتومی مفهومی آن را قبل از بررسی موفقیت یا شکست پروژه در تحقق ایدههای راهنما در فضا، فرم و مصالح لمس کرد.
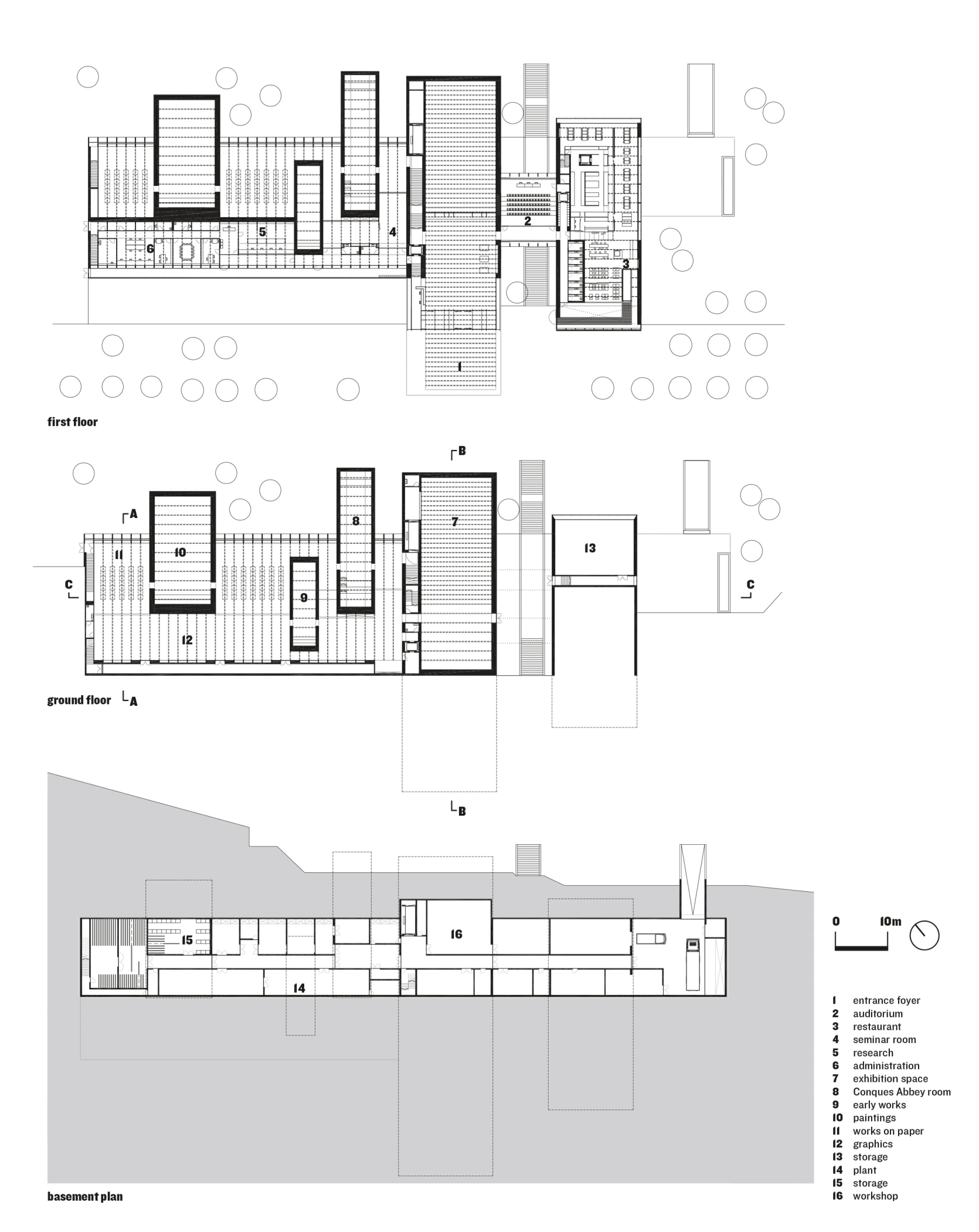
موزهی سولاژ در رودِز[۱] از استودیوی RCR لیاقت چنین بررسی دقیقی را دارد. این اثر یکی از جذابترین و سادهترین ایدههای تحقق یافتهی معماری در سالهای اخیر است. ساختمان در سایتی بین شهر قدیمی رودز با کلیسای جامعی با نمای سنگ قهوهای مایل به قرمز و بافت مدرن غرب با ساختمانهای عمدتاً یکشکلی که در سالهای اخیر ساختهشده، قرار دارد. این موزه بر مبنای مجموعهای از مستطیلهای موازی با پوشش کورتناستیل[۲] و شکافهایی بین آنها طراحیشده که نماهای وسیعی مشرف به چشمانداز ناهموار شمال فراهم میکند و راهپلههای عمومی را بین طبقات بالا و پایین موزه امتداد میدهد.


ارتباط آزاردهندهای بین وزن و بیوزنی این حجمهای فولادی معلق وجود دارد. احجام ظاهرا سنگین فولادی، که تنها چند پا روی تپهی کمعمقی کنسول شدهاند، ارتباط آزاردهنده ولی لذتبخشی برای بیننده بهوجود میآورد. گروه RCR با همنشین کردن فولاد و سنگ -سیاه و قهوهای- هارمونی زیبایی خلق کرده و با استفاده از هندسهای انتزاعی منزلگاه مناسبی برای نقاشیهای پیر سولاژ ایجاد کردهاند.
معماران RCR همیشه به دنبال کشف حد متعادلی بین انتزاع و ماده گرایی، طبیعت و مصنوع، سنگ و فولاد بودهاند و با درنظرگرفتن این اصول سنتهای موروثی مدرن کاتالانی را با معماری و توپوگرافی ادغام کردهاند.
آنها برای بررسی سایت و انتقال کانسپتهای اصلی پروژه از طریق طراحیهای فراوان آبرنگ و جوهری میزنند. آنها با درک سریع لایههای تاریخی سایت و تضاد بین قسمت لطیف جنوبی با دامداریهایش و قسمت خشنتر شمالی با بادهای زمستانی سخت و ساختمانهای تجاری و همینطور اولویت استفاده از نور شمالی برای نمایش بهتر آثار گالریها، طراحی باز در قسمت جنوبی و فضای بسته در قسمت شمالی را انتخاب کردند. اما سایت و ساختمان نیاز به پیوستگی شرقی-غربی هم داشت که طراحی حجمهای موازی برای مرتبطکردن طرفین مقابل ساختمان- کلیسای جامع و بافت قدیمی از یک طرف و پلی که به قسمت مدرن رودز میرسید، از طرف دیگر- راهحلی مناسب محسوب میشود.
ورودی موزه با یک سایبان معلق مشخصشده که بازدیدکنندگان را به سمت سالن ورودی و باجهی بلیت و کتابفروشی هدایت میکند. بر اساس ایدهی ارتباط جانبی پروژه، راهروهای شفافی بین حجمهای مستطیلی درنظر گرفتهشده که یک سالن سخنرانی کوچک و رستورانی با سرآشپزهای مجرب را در خود جای می دهند و این یعنی تماشای هنر فاخر همراه با پرخوری!

[divider]منبع[/divider]
[button color=”red” size=”normal” alignment=”none” rel=”follow” openin=”samewindow” url=”https://www.architectural-review.com/today/dark-matter-muse-soulages-in-rodez-by-rcr-arquitectes/8668812.article”]AR[/button]
[divider]پینوشتها[/divider]
[۱] Rodez
[۲] Cor-ten Steel
یا فولاد زنگی














































































