
پروژهی وابی هاوس توسط معمار تادائو آندو طراحیشده و مسئولیت توسعهی بخش اجرایی و هماهنگی امور ساختوساز آن به عهدهی شرکت BAAQ بوده است.



این بنا در فضایی به وسعت ۲۵ هکتار در ساحل اوآخاکا و بافاصله ۳۰ دقیقهای تا شهر پورتو اسکندیدو قرار دارد.

فونداسیون وابی هاوس به هنرمندی بوسکو سودی و با هدف گسترش تعامل و تبادلنظر بین هنرمندان رشتههای مختلف و جوامع محلی ساختهشده است.


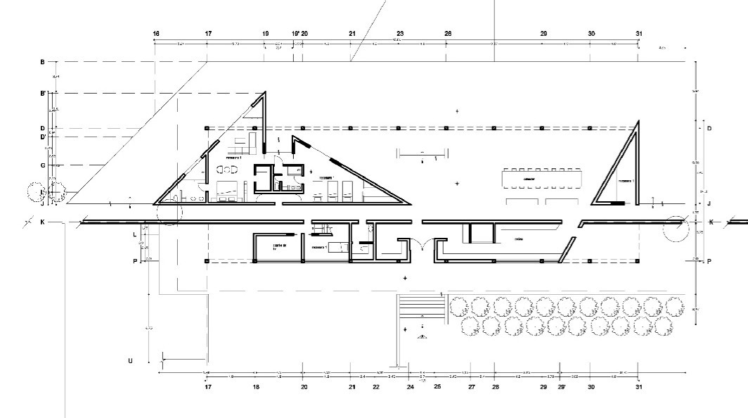
تمام فضاهای وابی هاوس طوری طراحیشده اند که چشمانداز زیبای این منطقه را به طور ویژه به تصویر میکشند. در این خانه امکاناتی شامل شش اتاقخواب خصوصی، دو اتاقمطالعه مشترک، یک اتاق چندمنظوره، یک اتاق تماشایتلویزیون، یک گالری نمایشگاهی، باغی پر از مجسمههای مختلف و مناطق تفریحی متعدد درنظرگرفتهشده است.

با نظارت کیفی و راهنمایی معمار تادائو آندو، تمام نماهای داخلی و خارجی این ساختمان از بتن ساختهشده و سقف شیروانی آن- نمونهای از پالاپاهای بومی مکزیک- با برگ نخل های ساحلی پوشیدهشده است.


عکاس: ادموند سامنر
منبع: [button color=”white” size=”normal” alignment=”none” rel=”follow” openin=”samewindow” ]آرکی دیلی[/button]
















