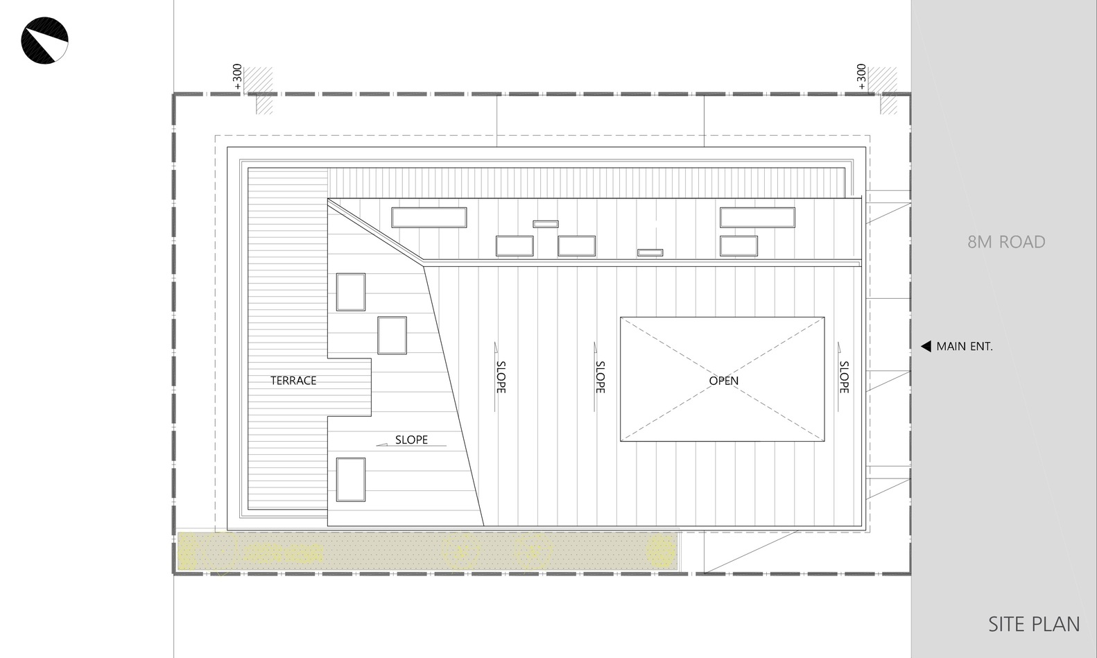
لبهسفید بر آجر نام ساختمان کوچکی با کاربریهای مختلف شامل پنج واحد استیجاری مجزا، یک خانه دوطبقه و یک فضای فروشگاهی در طبقه همکف است. محل احداث این پروژه در شهرکی کوچک و قدیمی در حاشیه شهر سئول پایتخت کشور چین قرار دارد. با رشد پیوسته شهر سئول، مرزبندی شهر در حال تغییر است و بالتبع این توسعه، شهرک هم پیشرفت میکند.

سفارشدهنده این پروژه بسیار تمایل داشت که خانه دوطبقهاش مانند یک پنت هاوس متفاوت بالای خانههای استیجاری قرار بگیرد و متناسب با فعالیتهای گوناگون فضای داخلی و خارجی داشته باشد. معماران استفاده از رنگها، بافتها و مصالح متفاوت در نمای خارجی را پیشنهاد کردند تا به این وسیله فضای استیجاری و تملیکی در نمای خیابان از هم متمایز باشند. علاوه بر این، ترکیب اشکال متنوع- مانند طراحی جعبه آجری کلاسیک و مقرونبهصرفه برای خانههای استیجاری و یک ذوزنقه سفید مدرن برای خانه مجلل- باعث میشود ویژگیهای مدنظر آنها به بهترین شکل نمایان شود.

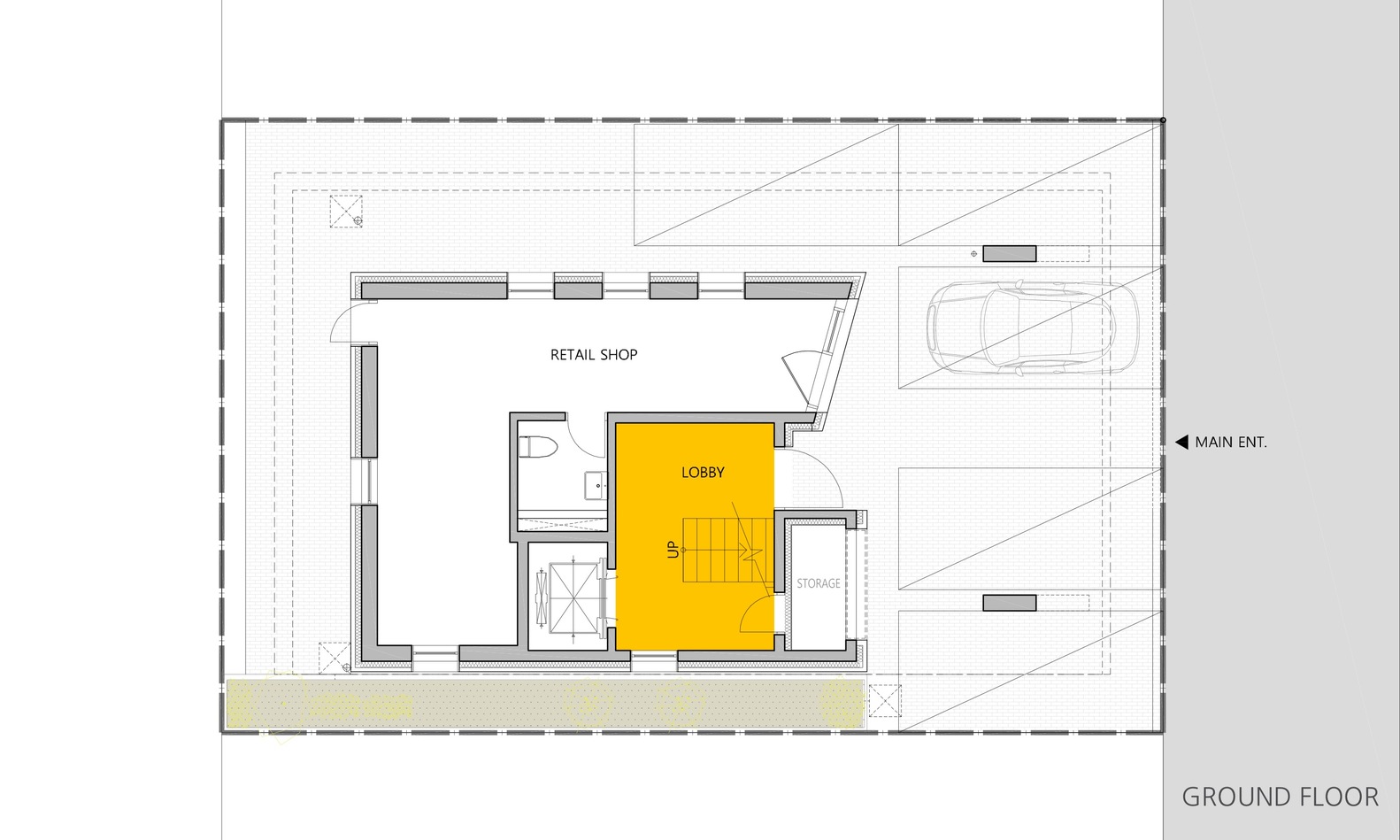
پیلوتیهای ساختمان و فضای فروشگاهی طوری طراحیشدهاند که ارتباط فعالی با فروشگاههای خیابان داشتهباشند و امکان گسترش آنها وجود داشته باشد. ورودی اصلی و فضای داخلی طبقه همکف با رنگهای روشن قرمز و لیموییرنگ آمیزی شدهاند که به افزایش جذابیت ساختمان نسبت به ساختمانهای مجاور کمک میکند.

راهروهای زرد به طبقهای با رنگ متضاد میرسند. با این روش نهتنها افراد با توجه به رنگآمیزی میتوانند تشخیص بدهند در کدام طبقه هستند بلکه در فضای عمومی لابی، راهروی ورودی و پلهها با صحنهای غیرعادی و متفاوت مواجه میشوند. این تجربه عجیب باعث میشود فضاهای اصلی غیرمنتظرهتر و جذابتر به نظر برسند.

هرکدام از خانههای استیجاری بالکنی مخصوص به خودشان دارند که تنها فضای خارجی هر واحد است. چارچوب قرمز بالکن آن را هم در نمای داخلی و هم در نمای خارجی از بخشهای دیگر ساختمان متمایز میکند. علاوه بر این، قاب استیل پنجرهها باعث شفافیت پنجره و نمای خارجی، تقویت عایق و کارکرد ضد آب آن میشود.

منبع: آرکدیلی
































