از زبان معمار :
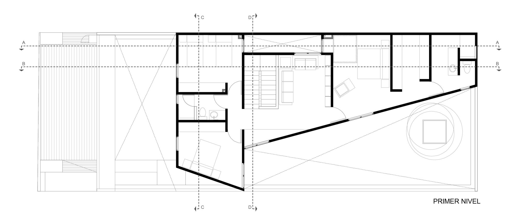
دیگو ریورا، خانهای است در محلهی سن آنخل، در جنوب شهر مکزیکو سیتی، در زمینی به مساحت ۲۰۰ مترمربع.
با توجه به مساحت طرح، ایدهی اصلی پروژه بر این شد که از چشم انداز فضای بیرون استفادهی حداکثری شود و فضای بیرون خانه به دنیای بیرون پیوند بخورد.

با توجه به محدودیتهای زمین، پاسیو را در امتداد طولی پروژه قرار دادیم تا افزون بر استفاده حداکثری از کیفیت فضایی سبز ، فضا را بزرگ تر نشان دهد.

در طراحی کف سازی پاسیو، از بتنی متشکل از خرده سنگ های صیقل خوردهی مرمر استفاده کردیم که افزون بر افزایش حس وسعت فضا، نور را به خوبی بازتاب می دهد و فضا را به اندازهی کافی روشن میکند.

طبقه ی بالا به شکل موربی بر روی همکف قرار گرفته است که ورودی را مشخص و راه حیاط مرکزی را متمایز میکند، و همچنین راهی به سقف باشد.

منبع: [button color=”white” size=”normal” alignment=”none” rel=”follow” openin=”samewindow” url=”http://www.archdaily.com/717899/casa-diego-rivera?ad_medium=main-image&ad_name=chrome-extension”]Archdaily[/button]
















